実際のスライダーの動きは、プレビュー/公開ページでご確認ください


アドリーム横浜鴨居

JR横浜線「鴨居」駅徒歩17分
平成29年1月リノベーション済み

タップすると画像が拡大されます

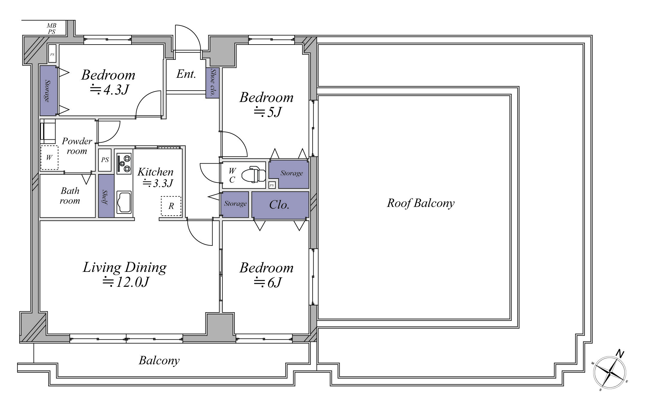
【リビング・ダイニング】

約12帖のリビング
8階最上階、南東向きバルコニーのため
明るい陽射しを感じる空間
【ルーフバルコニー】
約42㎡のルーフバルコニー。
ガーデニング・家庭菜園、アウトドアなど
多様な使い方ができ、生活を豊かにする空間。
プライバシーを確保しながら開放感を楽しめます。 
間取り 3LDK ┃ 専有面積 74.76㎡
最上階×南東向き×角部屋
開放感あふれるルーフバルコニー付住戸

キッチン

廊下側とリビング側の
2方向から入れる2Wayタイプ
独立型キッチン

浴室

明るく清潔感あふれる
ユニットバス

小見出し

ここをクリックして表示したいテキストを入力してください。テキストは「右寄せ」「中央寄せ」「左寄せ」といった整列方向、「太字」「斜体」「下線」「取り消し線」、「文字サイズ」「文字色」「文字の背景色」など細かく編集することができます。

洋室

約6帖
バルコニーとルーフバルコニーに面しており、開放感・日当たり◎

トイレ

温水洗浄便座付き

小見出し

ここをクリックして表示したいテキストを入力してください。テキストは「右寄せ」「中央寄せ」「左寄せ」といった整列方向、「太字」「斜体」「下線」「取り消し線」、「文字サイズ」「文字色」「文字の背景色」など細かく編集することができます。

洗面所

LEDが内蔵されており
洗練された洗面化粧台
鏡裏には収納たっぷり

洋室

約5帖の洋室
こちらもルーフバルコニーに面しています

玄関

姿見付き
大容量シューズボックス

収納

各居室・廊下・玄関に
クローゼットがあり
収納スペースが充実

シューズボックス

可動式の棚で好きな高さに調節可能な、
大容量シューズボックスです

LDK

別角度から見たLDKです

見出し

小見出し

ここをクリックして表示したいテキストを入力してください。

小見出し

ここをクリックして表示したいテキストを入力してください。

物件概要

価格
3,190万円
物件所在地
神奈川県横浜市都筑区池辺町2547-2
交通
JR横浜線「鴨居」駅まで徒歩17分
または横浜市営バス2分乗車、バス停「ららぽーと横浜西」まで徒歩6分
構造
鉄筋コンクリート(RC)9階地下1階建
専有面積
壁芯74.76㎡
間取り詳細
3LDK
権利
所有権
完成年月
1993年1月
現況
空室
引渡可能時期
即入居可
管理形態/管理会社
全部委託(巡回)/ 穴吹ハウジングサービス
管理費/修繕費/その他費用
管理費 17,880円(月額)
修繕積立金 15,620円(月額)
ルーフバルコニー使用料 1,300円(月額)
駐車場/駐輪場/自転車置場
駐車場:空有(月額15,000円)
※2025/10/30時点
ペット飼育
可(細則有)
設備・条件
エレベーター / ルーフバルコニー / フローリング / エアコン / 照明器具付き / TVモニタ付インターホン / 角住戸 / 全居室洋室 / 2WAYキッチン / 3口以上コンロ / バス・トイレ別 / オートバス / 温水洗浄便座 /  洗面化粧台 / ユニットバス / 24時間換気システム / クロゼット3ヶ所以上 / シューズボックス / オートロック / 防犯カメラ / 花火大会鑑賞
構造
木造 2階建て
物件ポイント
最上階・南東向き角部屋!
開放感あふれるルーフバルコニー付3LDK。
平成29年1月リノベーション済みで、
室内は大変きれいに保たれています。

「ららぽーと横浜」まで徒歩圏、
駅前にはスーパーや飲食店、郵便局なども揃い、
日々の暮らしに便利な環境が整っています。

約42㎡のルーフバルコニーでは、ガーデニングや
アウトドアリビングなどもお楽しみいただけます。
メリット
ここをクリックして表示したいテキストを入力してください。
ここをクリックして表示したいテキストを入力してください。テキストは「右寄せ」「中央寄せ」「左寄せ」といった整列方向、「太字」「斜体」「下線」「取り消し線」、「文字サイズ」「文字色」「文字の背景色」など細かく編集することができます。テキストテキストテキストテキストテキストテキストテキストテキストテキスト...。テキストテキストテキストテキストテキストテキストテキストテキストテキスト...。テキストテキストテキストテキストテキストテキストテキストテキストテキスト...。

周辺環境

横浜市立都田西小学校
約160m / 徒歩
横浜市立都田中学校
約897m / 徒歩12
ららぽーと横浜
約293m / 徒歩
小見出し
ここをクリックして表示したいテキストを入力してください。テキストは「右寄せ」「中央寄せ」「左寄せ」といった整列方向、「太字」「斜体」「下線」「取り消し線」、「文字サイズ」「文字色」「文字の背景色」など細かく編集することができます。
買い物
セブン-イレブン 横浜池辺町薮根店 / 徒歩3分
Fit Care DEPOT 池辺町店 / 徒歩4分

オーケー 川和町店 / 徒歩17分
イオンフードスタイル 鴨居店 / 徒歩24分

表示したいテキスト
ここをクリックして表示したいテキストを入力してください。
1,000円
医療
サイ・クリニック / 徒歩6分
ららぽーと横浜クリニック / 徒歩11分
斉藤歯科 / 徒歩12分
表示したいテキスト
ここをクリックして表示したいテキストを入力してください。
1,000円
公共機関・その他
都筑警察署 池辺町交番 / 徒歩6分
横浜池辺郵便局 / 徒歩14分
池辺町不動原公園 / 徒歩1分
表示したいテキスト
ここをクリックして表示したいテキストを入力してください。
1,000円

お問い合わせ

お電話でもお気軽にお問い合わせください
☎ 0120-344-715 
受付時間 10:00〜19:00(定休日 水曜日)
〒220-0004
神奈川県横浜市西区北幸2-8-4
横浜西口KNビル 12階
神奈川県横浜市西区北幸2-8-4
横浜西口KNビル12階
TEL:045-317-5670(代)
FAX:045-317-567